ESTATE 物件情報一覧

江別市上江別南町44-21、44-4
3,080万円 / 3LDK+S
交通・地図
-
- 最寄駅
-
-
- JR
- JR「江別」駅 徒歩16分
-
- 地下鉄
- -
-
- バス
- -
-
-
- 小学校区
-
江別市立上江別小学校
- 中学校区
-
江別市立江別第一中学校
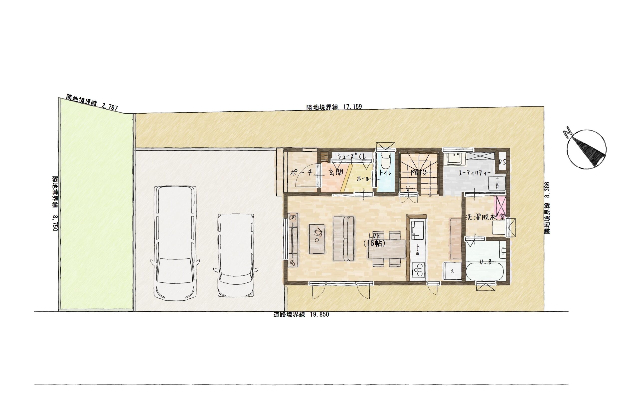
間取り【1F】
間取り【2F】
区画図
3Dパノラマ
物件詳細
-
- 間取り
-
3LDK+S
- 建物面積
-
96.89㎡(29.31坪)
-
- 土地面積
-
164.10㎡(49.64坪)
- 駐車場
-
2台
-
- 築年月(竣工月)
-
完成予定(2025年7月)
- 地目
-
宅地
-
- 建ぺい率/容積率
-
40% / 60%
- 地勢
-
平坦
-
- 接道状況
-
道路幅:6m、アスファルト舗装
- 取引態様
-
売主
-
- 用途地域
-
第一種低層住居専用地域
- 建築確認番号
-
第SKK20243257号
-
- 設備
-
北海道電力, 公営下水, オール電化
- 引渡し予定月
-
相談
- その他制限事項
-
景観法, 景観計画区域, 法22条区域
- 取引有効期限
-
2026年4月30日
-
- その他制限事項
-
外壁後退距離1m、立地適正化計画(居住誘導区域) ※44番4には地役権が設定されています。
周辺環境
-

ホクレンショップゆめみ野店まで500m
-

江別市立上江別小学校まで280m
-

江別市立江別第一中学校まで850m
-

認定こども園もりのひだまりまで950m
-

セイコーマートゆめみ野店まで450m
-

上江別南町公園まで300m
CONTACT
佐々木
090-1382-0735
ご予約・お問い合わせは
こちらまでお願いします。
似た条件の物件一覧
-
江別市野幌代々木町
【分譲中】100万円値下げ!GX補助金160万円対象物件!JR函館本線「野幌駅」徒歩13分◇◆GRACE HOME 野幌代々木Ⅵ A棟◆◇
価格改定済3,680万円(税込)-
所在地江別市野幌代々木町78番地4
-
間取り3LDK+S
-
学校区江別第二小学校・江別第二中学校
詳細を見る -
-
江別市野幌代々木町
【商談中】100万円値下げ!GX補助金160万円対象物件!JR函館本線「野幌駅」徒歩13分◇◆GRACE HOME 野幌代々木Ⅵ B棟◆◇
価格改定済3,680万円(税込)-
所在地江別市野幌代々木町78番地5
-
間取り4LDK
-
学校区江別第二小学校・江別第二中学校
詳細を見る -
-
江別市野幌若葉町
【新規分譲】JR函館本線「野幌駅」徒歩15分◇◆GRACE HOME 野幌若葉町Ⅲ A棟◆◇
建築中3,480万円(税込)-
所在地江別市野幌若葉町16番地3
-
間取り4LDK
-
学校区野幌若葉小学校・野幌中学校
詳細を見る -
-
江別市野幌町
【商談中】GX補助金125万円対象物件!JR函館本線「野幌駅」徒歩3分◇◆GRACE HOME 野幌駅前 A棟◆◇
建築中4,180万円(税込)-
所在地江別市野幌町45番地14
-
間取り4LDK
-
学校区江別第二小学校・江別第二中学校
詳細を見る -
-
江別市野幌町
【新規分譲】 GX補助金125万円対象物件!JR函館本線「野幌駅」徒歩3分◇◆GRACE HOME 野幌駅前 B棟◆◇
建築中4,280万円(税込)-
所在地江別市野幌町45番地34
-
間取り3LDK+S
-
学校区江別第二小学校・江別第二中学校
詳細を見る -
-
江別市野幌代々木町
【新規分譲】GX補助金125万円対象物件!JR函館本線「野幌駅」徒歩13分◇◆GRACE HOME 野幌代々木Ⅵ F棟◆◇
建築中3,880万円(税込)-
所在地江別市野幌代々木町78番地9
-
間取り4LDK
-
学校区江別第二小学校・江別第二中学校
詳細を見る -
-
江別市野幌代々木町
【新規分譲】GX補助金125万円対象物件!JR函館本線「野幌駅」徒歩13分◇◆GRACE HOME 野幌代々木Ⅵ E棟◆◇
建築中3,880万円(税込)-
所在地江別市野幌代々木町78番地8
-
間取り4LDK
-
学校区江別第二小学校・江別第二中学校
詳細を見る -






























](https://yamashita.biz/wp-content/uploads/2024/10/2_KRASOL-scaled.jpg)






担当者からのコメント
◇◇価格改定!100万円値下げ!◇◇
旧価格3,180万円(R7.11.1~)⇒新価格3,080万円(R8.3.1~)
◇◇家庭用エアコン1台で全館冷暖房の家◇◇
●太陽光パネル7.5KW搭載!
●「Nearly ZEH認定・認定低炭素住宅」!
●スマートeチェンジで停電時も安心♪
■プライベート見学会ご予約受付中■
エアコン1台で冷暖房する住宅をぜひご体感ください!
予約制のため、前日までにご予約をお願い致します。
※ご予約・お問い合わせは
(担当)佐々木090-1382-0735まで…。