ESTATE 物件情報一覧

札幌市白石区平和通2丁目南1-21
5,180万円 / 3LDK+S
交通・地図
-
- 最寄駅
-
-
- JR
- JR「白石」駅まで徒歩8分
-
- 地下鉄
- 地下鉄「白石」駅まで徒歩19分
-
- バス
-
-
- 小学校区
-
札幌市立白石小学校
- 中学校区
-
札幌市立柏丘中学校
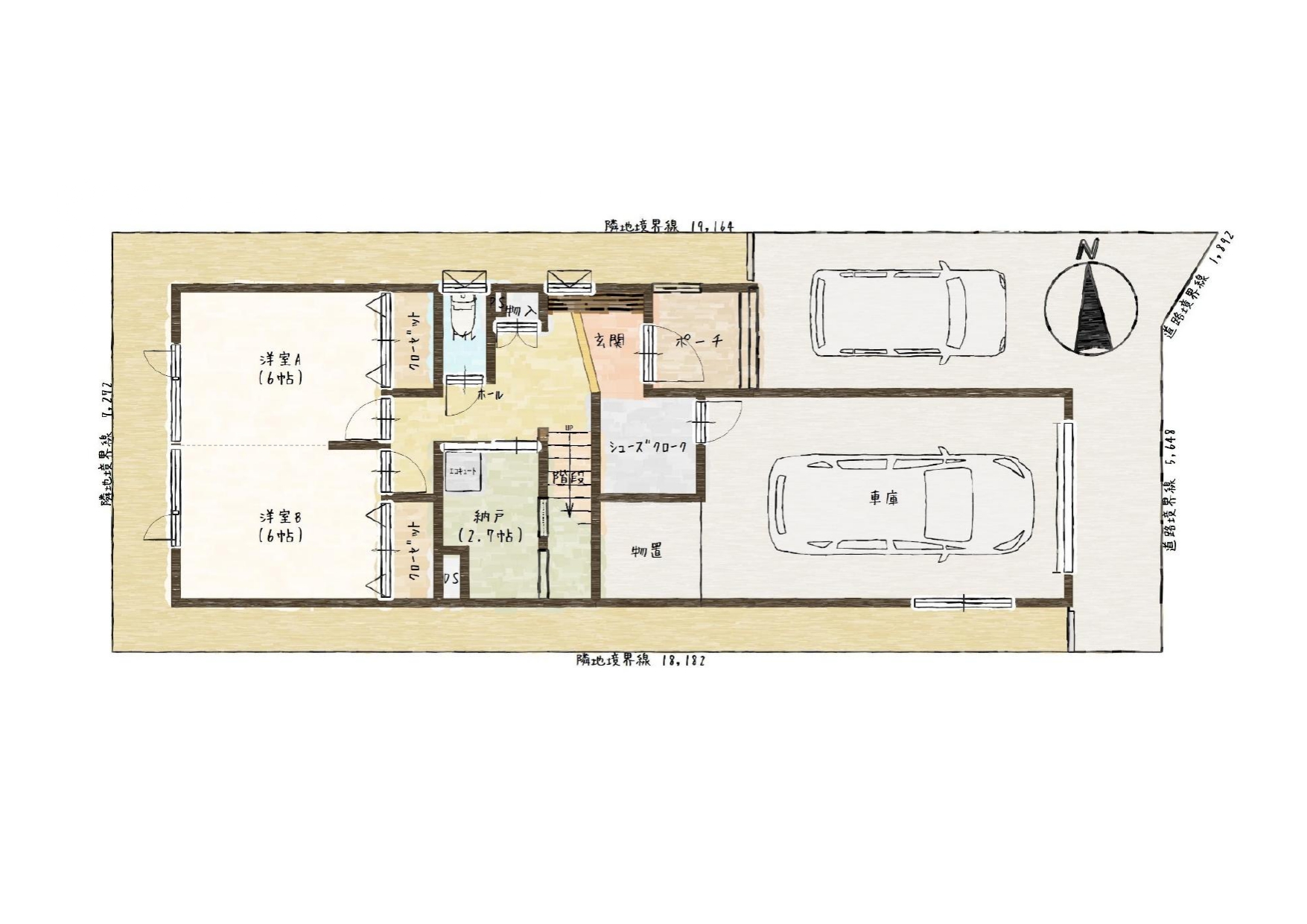
間取り【1F】
区画図
物件詳細
-
- 間取り
-
3LDK+S
- 建物面積
-
145.75㎡(44.08坪)
-
- 土地面積
-
133.00㎡(40.23坪)
- 駐車場
-
2台
-
- 築年月(竣工月)
-
完成済(2026年1月完成)
- 地目
-
宅地
-
- 建ぺい率/容積率
-
60% / 200%
- 地勢
-
平坦
-
- 接道状況
-
道路幅:8m、アスファルト舗装
- 取引態様
-
売主
-
- 用途地域
-
第一種住居地域
- 建築確認番号
-
第SKK20251042号
-
- 設備
-
北海道電力, 公営下水
- 引渡し予定月
-
即時
- その他制限事項
-
景観法、宅地造成工事規制区域、高度地区、法22条区域、緑保全創出地域(居住系市街地)
- 取引有効期限
-
2026年5月31日
周辺環境
-

スーパー ザ・ビッグエクスプレス白石中央店まで200m
-

スーパーアークス白石店まで350m
-

セブンイレブン札幌本通2丁目北店まで300m
-

ツルハドラッグ平和通店まで350m
-

白石本通北郵便局まで600m
-

札幌市立白石小学校まで200m
-

札幌市立柏丘中学校まで1300m
-

白中公園まで8m
-

白石幼稚園まで220m
CONTACT
浪岡
080-4878-5581
ご予約・お問い合わせは
こちらまでお願いします。

































![制振装置「KRASOL]](https://yamashita.biz/wp-content/uploads/2024/10/2_KRASOL-scaled.jpg)






担当者からのコメント
【家庭用エアコン1台で全館冷暖房の家!】
太陽光パネル搭載!
「ZEH認定・認定低炭素住宅」!
スマートeチェンジで停電時も安心♪
■プライベート見学会ご予約受付中■
エアコン1台で冷暖房する住宅をぜひご体感ください!
予約制のため、前日までにご予約をお願い致します。
※ご予約・お問い合わせは(担当)浪岡080-4878-5581まで