資料請求・お問い合わせ
MENU
011-211-0735
受付時間 / 9:00 〜 17:00
メールでのお問い合わせ
資料請求・ご相談など
家づくりのこだわり
物件情報
体感型モデルハウス
お客様の声
コラム
お知らせ
オーナー様専用ページ
会社概要
プライバシーポリシー
サイトマップ
011-211-0735
受付時間 / 9:00 〜 17:00
資料請求・お問い合わせ
HOME
体感型モデルハウス
物件情報一覧
資料請求・お問い合わせ
家づくりのこだわり
- 全館空調
- ソーラー・システム
- 断熱性能
- 省エネ性能
- 地震対策
- アフター保証
- 標準仕様
お知らせ
コラム
お客様の声
オーナー様専用ページ
アフターメンテナンス予約
会社概要
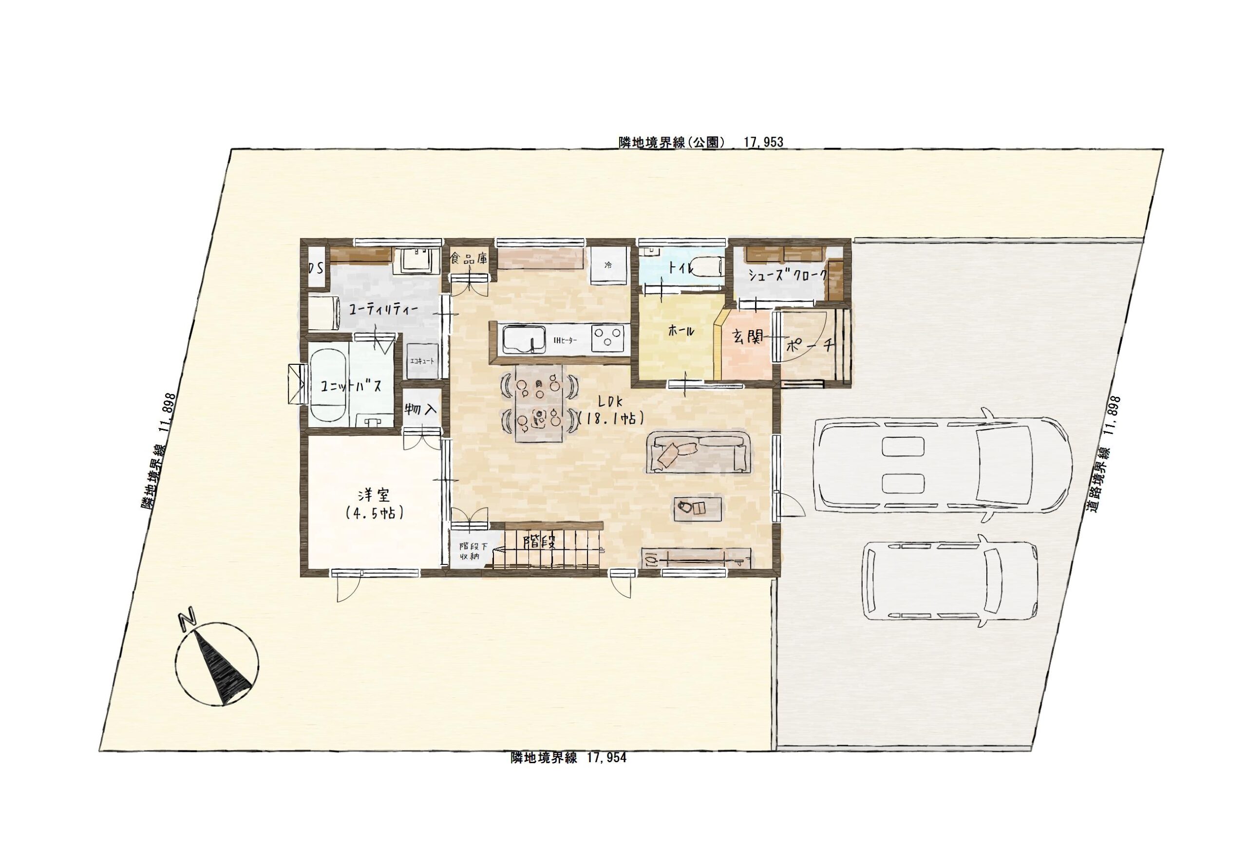
江別市野幌末広町【成約済】GX補助金125万円対象物件!◆◇GRACE HOME 野幌末広町 F棟◇◆
ESTATE
物件情報一覧
HOME
物件情報一覧
江別市野幌末広町【成約済】GX補助金125万円対象物件!◆◇GRACE HOME 野幌末広町 F棟◇◆
成約済