ESTATE 物件情報一覧

江別市野幌代々木町78番地9
3,880万円 / 4LDK
交通・地図
-
- 所在地
-
- 最寄駅
-
-
- JR
- JR「野幌」駅 徒歩13分
-
- 地下鉄
- -
-
- バス
- -
-
-
- 小学校区
-
江別第二小学校
- 中学校区
-
江別第二中学校
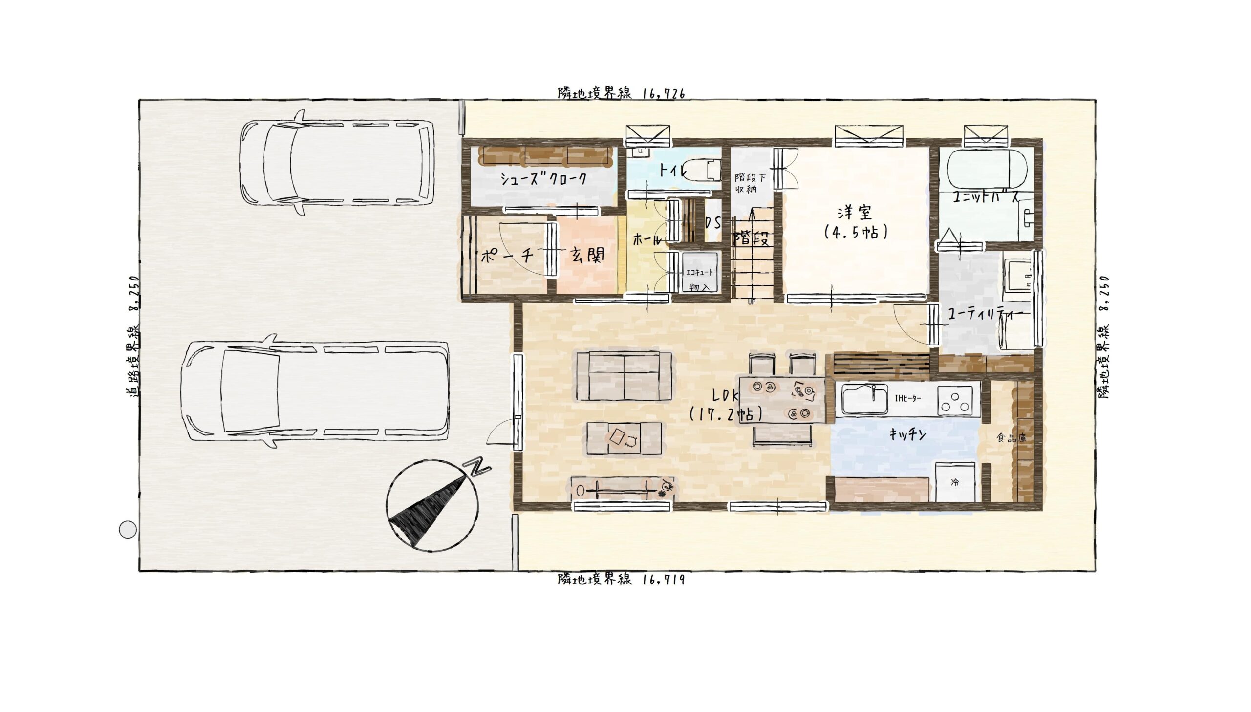
間取り【1F】
間取り【2F】
区画図
物件詳細
-
- 間取り
-
4LDK
- 建物面積
-
110.87㎡(33.53坪)
-
- 土地面積
-
137.96㎡(41.73坪)
- 駐車場
-
2台
-
- 築年月(竣工月)
-
完成予定(2026年8月末)
- 地目
-
宅地
-
- 建ぺい率/容積率
-
60% / 200%
- 地勢
-
平坦
-
- 接道状況
-
道路幅:8m、アスファルト舗装
- 取引態様
-
売主
-
- 用途地域
-
第二種中高層住居専用地域
- 建築確認番号
-
第SKK20254244号
-
- 設備
-
北海道電力, 公営下水
- 引渡し予定月
-
相談
- その他制限事項
-
景観法、景観計画区域、法22条区域、都市機能誘導区域・居住誘導区域
- 取引有効期限
-
2026年4月30日
周辺環境
-

生鮮市場江別店まで210m
-

江別市立江別第二小学校まで400m
-

江別市立江別第二中学校まで270m
-

ファミリーマート江別白樺通店まで400m
-

おひさまのっぽろ保育園まで130m
-

野幌末広町公園まで260m
CONTACT
佐々木
090-1382-0735
ご予約・お問い合わせは
こちらまでお願いします。
似た条件の物件一覧
-
江別市上江別南町
【分譲中】100万円値下げ‼JR函館本線「江別駅」徒歩16分◇◆GRACE HOME 上江別南町Ⅱ A棟◆◇
価格改定済3,080万円(税込)-
所在地江別市上江別南町44-21、44-4
-
間取り3LDK+S
-
学校区上江別小学校・江別第一中学校
詳細を見る -
-
江別市野幌代々木町
【商談中】100万円値下げ!GX補助金160万円対象物件!JR函館本線「野幌駅」徒歩13分◇◆GRACE HOME 野幌代々木Ⅵ B棟◆◇
価格改定済3,680万円(税込)-
所在地江別市野幌代々木町78番地5
-
間取り4LDK
-
学校区江別第二小学校・江別第二中学校
詳細を見る -
-
江別市野幌若葉町
【新規分譲】JR函館本線「野幌駅」徒歩15分◇◆GRACE HOME 野幌若葉町Ⅲ A棟◆◇
建築中3,480万円(税込)-
所在地江別市野幌若葉町16番地3
-
間取り4LDK
-
学校区野幌若葉小学校・野幌中学校
詳細を見る -
-
江別市野幌代々木町
【分譲中】◇◆建築条件付き土地 <江別市野幌代々木町>◇◆
土地880・1,080万円(税込)-
所在地江別市野幌代々木町78番
-
間取り土地
-
学校区江別第二小学校・江別第二中学校
詳細を見る -
-
江別市野幌町
【商談中】GX補助金125万円対象物件!JR函館本線「野幌駅」徒歩3分◇◆GRACE HOME 野幌駅前 A棟◆◇
建築中4,180万円(税込)-
所在地江別市野幌町45番地14
-
間取り4LDK
-
学校区江別第二小学校・江別第二中学校
詳細を見る -
-
江別市野幌町
【新規分譲】 GX補助金125万円対象物件!JR函館本線「野幌駅」徒歩3分◇◆GRACE HOME 野幌駅前 B棟◆◇
建築中4,280万円(税込)-
所在地江別市野幌町45番地34
-
間取り3LDK+S
-
学校区江別第二小学校・江別第二中学校
詳細を見る -
-
江別市野幌代々木町
【分譲中】100万円値下げ!GX補助金160万円対象物件!JR函館本線「野幌駅」徒歩13分◇◆GRACE HOME 野幌代々木Ⅵ A棟◆◇
価格改定済3,680万円(税込)-
所在地江別市野幌代々木町78番地4
-
間取り3LDK+S
-
学校区江別第二小学校・江別第二中学校
詳細を見る -











](https://yamashita.biz/wp-content/uploads/2024/10/2_KRASOL-scaled.jpg)




担当者からのコメント
<GX志向型住宅補助金125万円について>
本物件はみらいエコ住宅2026事業の「GX志向型住宅」に該当いたします。
※上記補助金は予算がなくなり次第終了となります。
◇◇家庭用エアコン1台で全館冷暖房の家◇◇
●生鮮市場徒歩3分!
●小・中学校5分圏内!
●高気密高断熱!UA値0.24、C値0.5以下
■プライベート見学会ご予約受付中■
真夏日でも室内は24~25℃!
エアコン1台で冷暖房する住宅をぜひご体感ください!
予約制のため、前日までにご予約をお願い致します。
※ご予約・お問い合わせは
(担当)佐々木090-1382-0735まで…。